溫碧泉化妝品公司辦公室裝修設計
面積 :1100平方米 / 地址 :廣州珠江新城環球都會廣場31F / 點擊 :3186
HBD海博裝飾設計團隊以水之名,將水所獨有的特性延伸至空間運用中,使溫碧泉化妝品公司辦公室裝修設計的企業形象進一步升華,整個辦公室裝修設計空間:精致、清新、靈動、自由!精品往往在不斷做減法,空間比較終追求的應該是舒適、愜意!

溫碧泉辦公室裝修設計-設計理念

溫碧泉辦公室裝修設計-設計概念

溫碧泉辦公室裝修設計-空間意向

溫碧泉辦公室裝修設計- 細節概念

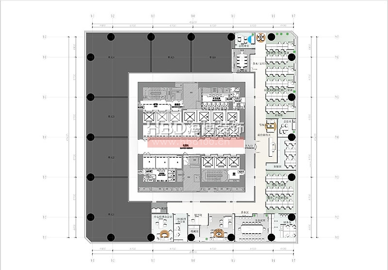
溫碧泉辦公室裝修設計-平面方案

溫碧泉辦公室裝修設計-前臺空間

溫碧泉辦公室裝修設計-前臺空間

溫碧泉辦公室裝修設計-公共辦公區

溫碧泉辦公室裝修設計-經理辦公室

溫碧泉辦公室裝修設計-秘書室

溫碧泉辦公室裝修設計-會議室
海博裝飾 18026207127
- 上一案例:富力新天地辦公室裝修設計(恩珍源人參公司)
- 下一案例:聚元堂公司珠江新城辦公室設計
137-1150-4887
在線咨詢
